+30 699 706 5513 info@xanthosp.com

Κτηριακά Έργα

Δημιουργία και εκσυγχρονισμός υποδομών πρόνοιας κέντρου “Παναγία η Φιλανθρώπινη”

Ιερά Μονή Σίμωνος Πέτρας – Μετόχιον.

Ιερό Κοινόβιο “Παναγία η Φιλανθρώπινη”.

Κέντρο “Παναγία η Φιλανθρώπινη”.

Δημιουργία και εκσυγχρονισμός υποδομών πρόνοιας.

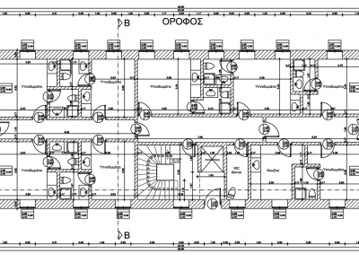
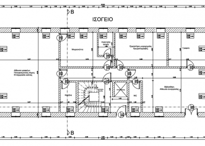
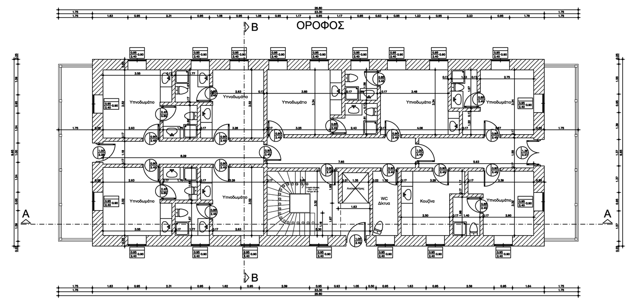
Αποτύπωση υφιστάμενης κατάστασης κτηρίων.

Στοιχεία έργου

Θέση: Ορμύλια Χαλκιδικής

 


Δομημένη επιφάνεια (m²)


Όγκος (m³)